We wsi Bolesławowo, gmina Serock, w otoczeniu lasów państwowych, powstało prestiżowe osiedle domów wolnostojących, jednorodzinnych, jednokondygnacyjnych, w stanie deweloperskim.
Polska Spółka Gazownictwa planuje budowę gazociągu w obszarze inwestycji.
Powierzchnia domu – 138,29 m2. Adaptacja poddasza umożliwia uzyskanie dodatkowej przestrzeni. W bryle domu garaż jednostanowiskowy. Dom położony na działce 800 m2.
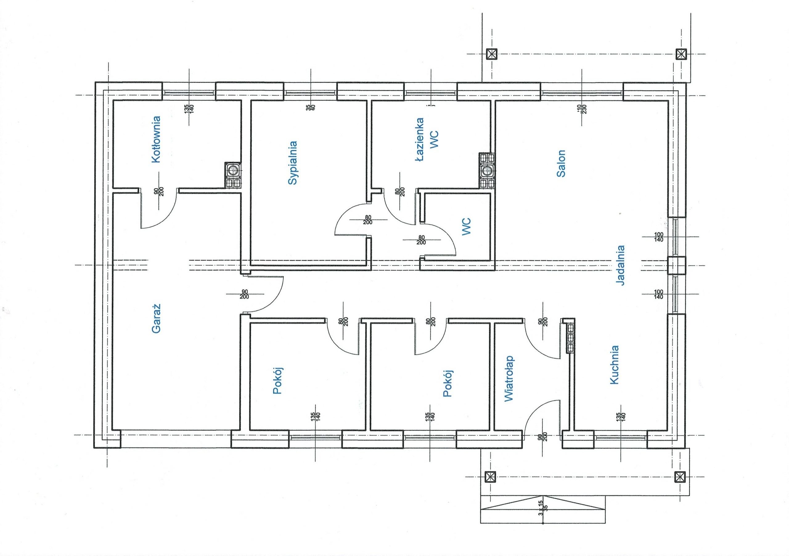
Układ pomieszczeń:
Wiatrołap: 4,86 m2,
Korytarz: 6,05 m2,
Pokój: 8,00 m2,
Pokój: 8,90 m2,
Pokój: 11,66 m2,
Łazienka: 6,35 m2,
Toaleta: 2,72 m2,
Pokój dzienny + jadalnia: 23,86 m2,
Kuchnia: 6,72 m2,
Garaż: 19,16 m2,
Kotłownia CO: 6,81 m2,
Powierzchnie:
użytkowa: 82,25 m2,
użytkowa podstawowa: 55,55 m2,
użytkowa pomocnicza: 26,70 m2,
usługowo-techniczna: 25,97 m2,
całkowita parteru: 138,29 m2 + strych 138,29 m2,
zabudowy: 138,29 m2.
Standard wykończenia:
Drzwi wejściowe o podwyższonej odporności na włamanie, w okleinie drewnopodobnej,
Drzwi wewnętrzne: otwory drzwiowe przygotowane do montażu ościeżnic i drzwi (bez drzwi),
Okna i drzwi tarasowe trzyszybowe spełniające wymagania WT 2021,
Parapety zewnętrzne aluminiowe oraz wewnętrzne z konglomeratu,
Podłogi: wylewki cementowe,
Ściany: zewnętrzne (osłonowe) wykonane z cegły ceramicznej grubości 25cm, ściany działowe ceramiczne o grubości 11,5 cm, tynki gipsowe, bez malowania, strop monolityczny żelbetowy, izolacja termiczna zgodnie z wymaganiami WT2021, elewacje tynk akrylowy,
Brama garażowa w okleinie drewnopodobnej,
Instalacja elektryczna podtynkowa z zabezpieczeniem antyporażeniowym, zasilenie trójfazowe w kuchni i garażu, wyprowadzenie do montażu rolet zewnętrznych elektrycznych, oświetlenie: instalacja bez opraw,
Dach dwuspadowy pokryty dachówką ceramiczną,
Instalacja wodna i kanalizacyjna bez armatury sanitarnej,
Instalacja CO – podłogowa (z wyjątkiem garażu),
Wentylacja grawitacyjna,
Instalacja alarmowa,
Instalacja wewnętrzna RTV,
Instalacja wewnętrzna telefon / Internet,
Instalacja domofonowa,
Dom częściowo ogrodzony.
W niedalekiej odległości:
szkoła – 3 minuty,
żłobek i przedszkole – 12 minut
sklep – 2 minuty
aqua park – 8 minut
kościół – 6 minut
trasa nr 62 i przystanek autobusowy – 2 minuty
Serock – 10 minut
Nowy Dwór Mazowiecki – 21 minut
Warszawa – 40 minut
Cena: 699.000,00 zł , w tym:
dom: 698.000,00 PLN – 5.047,36 PLN/m2 ,
udział w drodze: 1000,00 PLN
Przedstawiona oferta cenowa ma charakter informacyjny i nie stanowi oferty handlowej w rozumieniu art. 66 § 1 Kodeksu Cywilnego.

































